Pont roulant électrique à poutre simple à une poutre européenne de type HD

Pont roulant électrique à poutre simple à une poutre européenne de type HD

Le pont roulant européen à poutre unique est une machine de levage compacte conçue et fabriquée en stricte conformité avec les normes FEM et DIN, avec une technologie avancée et un design magnifique. Divisé en type général et type de suspension, soutenant l'utilisation d'un palan électrique de norme européenne, adapté à la manutention de matériel d'atelier et d'entrepôt, assemblage de précision de grandes pièces et d'autres endroits.
Discuter maintenant

Produit de détail

Pont roulant électrique à poutre simple à une poutre européenne de type HD

Brève description:

Le pont roulant européen à poutre unique est une machine de levage compacte conçue et fabriquée en stricte conformité avec les normes FEM et DIN, avec une technologie avancée et un design magnifique. Divisé en type général et type de suspension, soutenant l'utilisation d'un palan électrique de norme européenne, adapté à la manutention de matériel d'atelier et d'entrepôt, assemblage de précision de grandes pièces et d'autres endroits.


image.png


Il pourrait largement utilisé dans la fabrication de machines, la métallurgie, le pétrole, la pétrification, le port, le chemin de fer, l'aviation civile, la nourriture, la fabrication de papier, la construction, les industries électroniques atelier, entrepôt et autres situations de manutention, esp. Appliqué à la manutention des matériaux nécessitant un positionnement précis, les grands composants précisent leur situation d'assemblage.


Single-girder Overhead Crane.png

Images détaillées:

Single-girder Overhead Crane.png

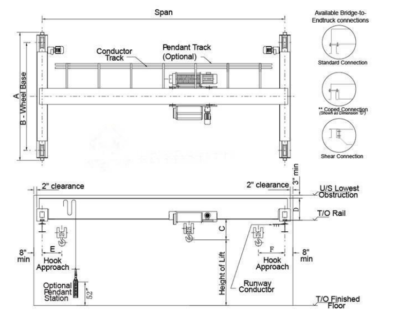
Dessin Esquisse:

Single-girder Overhead Crane.png

Paramètres techniques:


Envergure

m

7.5

10,5

13.5

16.5

19,5

22,5

25,5

Capacité

t

1 ~ 12,5 t

Poids total

kg

1781 ~ 12086

Poids du chariot

kg

405 ~ 740

Max. Charge de roue

kn

13,5 ~ 90,94

Rail de voyage

P24 ~ P43

Vitesse de levage

m / min

0.8 / 5

0.8 / 5

0.8 / 5

0.8 / 5

0.8 / 5

0.8 / 5

0.8 / 5

Hauteur de levage

m

≥ 6

≥ 6

≥ 6

≥ 6

≥ 6

≥ 6

≥ 6

Puissance motrice totale

kw

4.31

4.31

4.31

4.31

4,67

4,67

4,67

Vitesse de la grue

m / min

3-30

3-30

3-30

3-30

3-30

3-30

3-30

Vitesse du chariot

m / min

2-20

2-20

2-20

2-20

2-20

2-20

2-20

Devoir de travail

M5 / A5



包装运输.jpg

Enquête